www.Waldstrasse72.de
Zentrale Lage im Berliner Norden:
1202 m²Grundstück
mit 400m² Gewerbe und Wohnfläche
2 Wohnungen je 108m2, Garten, 200m2 Büro, Werkstatt, Laden, Lager, Produktion,
Waldstrasse72
13403 Berlin
Objektbeschreibung
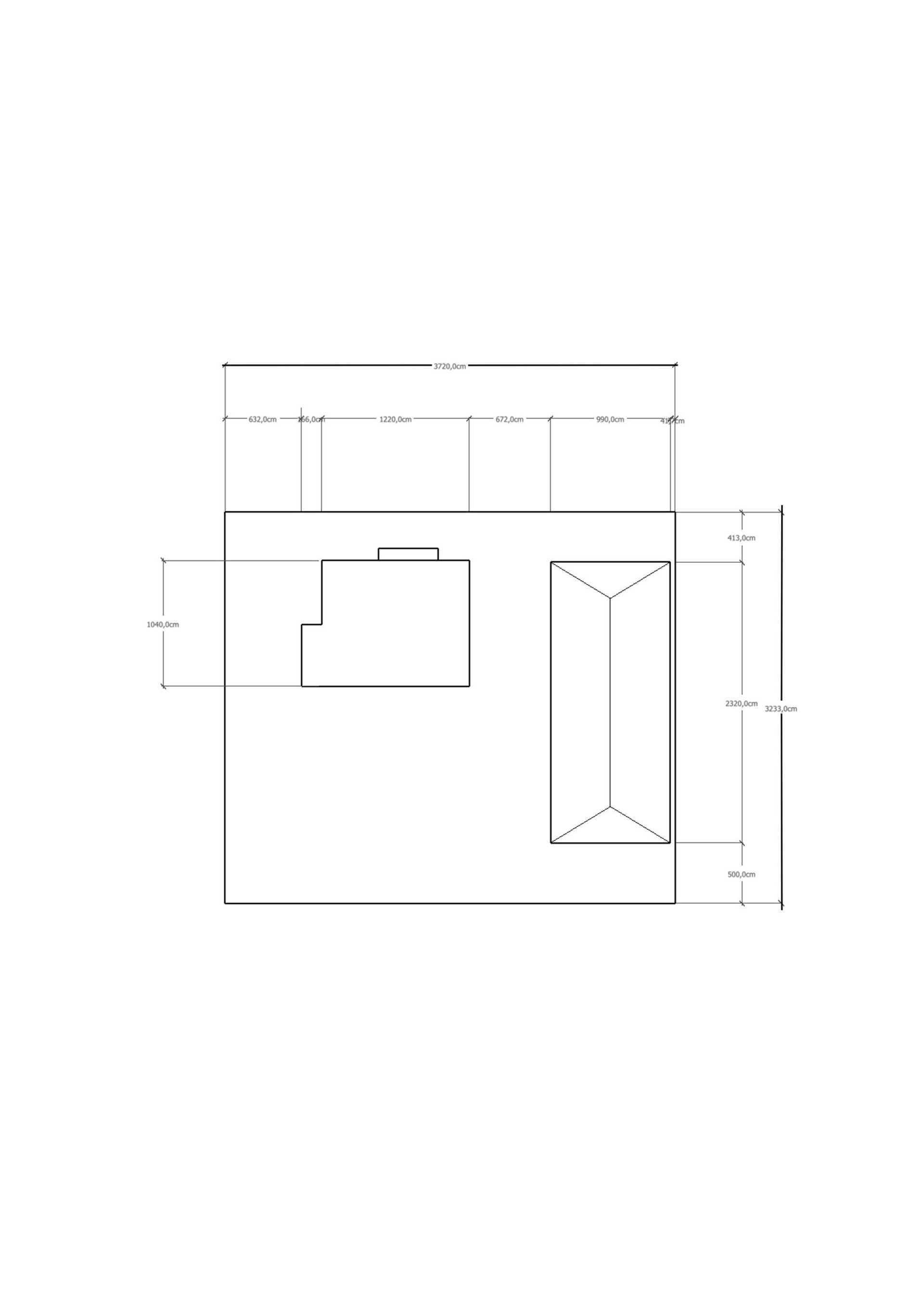
Das 1202 m² große Grundstück ist rechteckig geschnitten mit 32,3 m Straßenfront und 37,2 m tief.
Entlang der Straße ist es mit einem 200 m2 Gewerbebau, einem ehemaligen Lebensmittelgeschäft, bebaut. Heute befindet sich in dem vorderen Teil Büro und in dem hinteren Teil Lagerfläche.
Im hinteren Teil des Grundstücks steht ein unterkellertes Zweifamilienhaus mit 216m2 Wohnfläche, aufgeteilt in zwei Wohnungen zu 108 m2. Ausserdem befinden sich zwei Garagen auf dem Grundstück.
Nutzung und Entwicklungsmöglichkeiten:
-Das Ensemble kann als Anlageobjekt mit einer Mietrendite von 50.230,-€ gehalten werden. Die Mietrendite hat Steigerungspotenzial.
-Bei Eigennutzung bietet es die ideale Kombination aus Wohnungen und Arbeiten. 200 m² Büro und Produktion, 216 m² Wohnen für die Familie. Das Haus und Garten sind gepflegt, die Wohnungen instandgehalten.
-Der Gewerbebau kann durch ein mehrstöckiges Wohn- und Geschäftshaus (ca 1200 m² Fläche) ersetzt werden. Sowohl das Nachbarhaus, als auch das Zweifamilienhaus auf dem Grundstück sind mit Brandwänden auf einen Anbau vorbereitet. Eine Planung für den Anbau an das Zweifamilienhaus besteht bereits.
Lage
- Zentrale Lage im Berliner Norden in der Waldstraße 71/72, Reinickendorf.
-Gut sichtbare Straßenfront, 32,3 m lang, zur stark frequentierten Waldstr. .
- Das Wohnhaus auf der Rückseite des Grundstücks grenzt an einen Park und an Einfamilienhausbebauung.
- Mischgebiet von Wohnhäusern, Industrieansiedlungen und Groß- und Supermärkten.
- Die Geschäftsräume befinden sich in zentraler Lage in direkter Nähe zum Einkaufsgebiet Kurt-Schuhmacher-Platz, Eichborndamm, Residenzstraße, Tegel, Forschungs- und Industriepark Berlin TXL.
- Entfernung zum Autobahnanschluss: ca. 1,5 km
50.230,-€ Jahresmiete nettokalt
Ihre neuen Geschäftsräume in zentraler Lage
Gewerbegrundstück zur vielfältigen Nutzung in Nähe Kurt-Schuhmacher-Platz und 1,5 km zur Autobahn
Kaufpreis 1.630.000,-€ provisionsfrei











Bei Interesse kontaktieren Sie uns bitte per E-Mail
Waldstrasse 71/72
Gewerbegrundstück mit Zweifamilienhaus und Gewerbeimmobilie
Waldstraße 71/72, 13403 Berlin Reinickendorf
Verkauf
Gewerbegrundstück mit Zweifamilienhaus und Laden
Kontakt
Hr. Schneider
Waldstraße 71/72
13403 Berlin
info@waldstrasse72.de
© 2024. All rights reserved.